bản đồ quy hoạch đà lạt
bản đồ quy hoạch đà lạt Xây dựng phát triển thành phố Đà Lạt và vùng phụ cận đến năm 2030 trở thành một vùng đô thị hiện đại, đẳng cấp quốc tế; có đặc thù về khí hậu, cảnh quan tự nhiên, văn hóa lịch sử và di sản kiến trúc tầm quốc gia, khu vực và có ý nghĩa quốc tế.Theo đó, phạm vi điều chỉnh quy hoạch chung thành phố Đà Lạt và vùng phụ cận bao gồm: Thành phố Đà Lạt và các huyện Lạc Dương, Đơn Dương, Đức Trọng và một phần huyện Lâm Hà với tổng diện tích đất tự nhiên khoảng 335.930 ha. Trong đó, thành phố Đà Lạt có tổng diện tích đất tự nhiên khoảng 39.440 ha.

Bấm vào đây bản đồ quy hoạch đà lạt
Công bố bản đồ quy hoạch sử dụng đất TP Đà Lạt đến năm …
Công bố bản đồ quy hoạch sử dụng đất TP Đà Lạt đến năm 2020. Thông tin thêm. prev. next. Quy hoạch · Quy Hoạch Chi Tiết Khu Dân Cư – Tái Định Cư 5B, …
Quy Hoạch Chi Tiết Khu Dân Cư – Tái Định Cư 5B, Phường 3 …
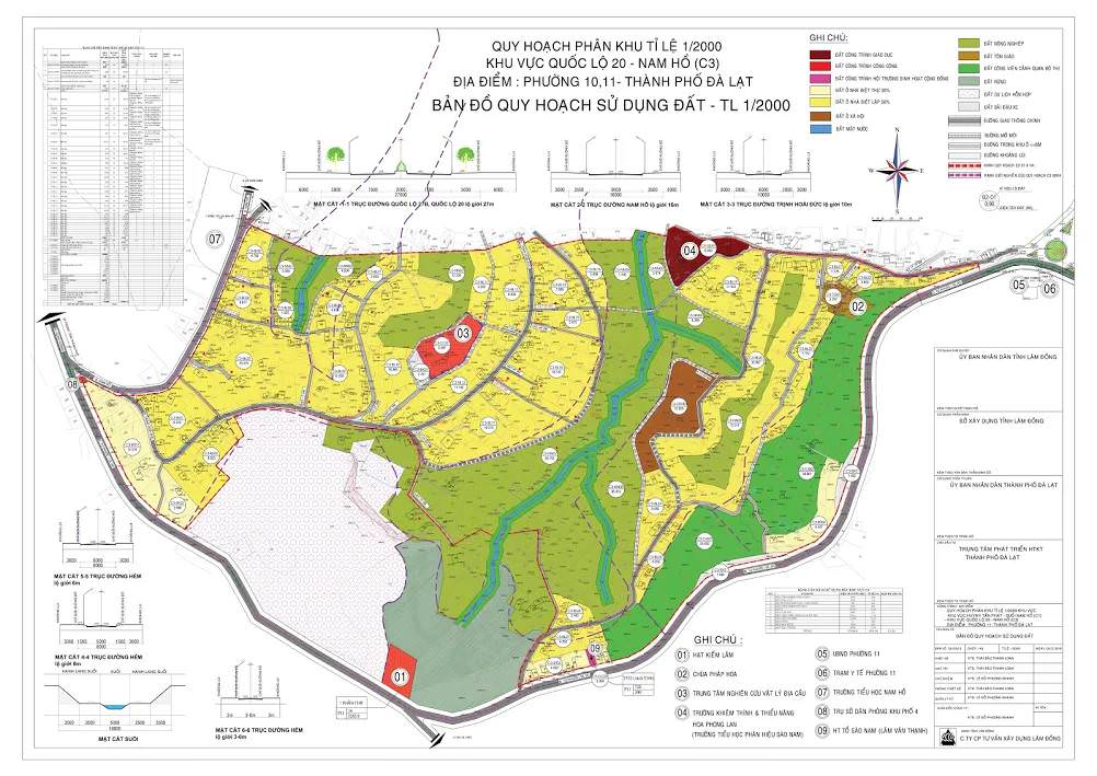
Dự Thảo Đồ Án Quy Hoạch Phân Khu Huỳnh Tấn Phát – Suối Nam Hồ (Khu C1), Phường 11 … Công bốsử dụng đất TP đến năm 2020.
Quy hoạch chung thành phố Đà Lạt và vùng phụ cận đến năm …
Ngày 23/10/2014 Chủ tịch Ủy ban nhân dân tỉnh Lâm Đồng đã ban hành Quyết định 2221/QĐ-UBND về việc ban hành quản lý theo đồ án điều chỉnh Quy hoạch chung …
Quy Hoạch Sử Dụng Đất Phường 1
Giới thiệu · Sơ đồ website · Liên hệ · © UBND Thành phố Đà Lạt. Trụ sở: Số 02, đường Trần Nhân Tông, phường 8, thành phố Đà Lạt, Lâm Đồng.
Cổng thông tin công bố quy hoạch Thành phố Đà Lạt
Cổng thông tin ử dụng đất thành phố là điểm cung cấp công khai thông tin về … Dinh Bảo Đại Đà Lạt, công trình kiến trúc đồ sộ và độc đáo …
Tái Định Cư Phạm Hồng Thái, Phường 10
Dự Thảo Đồ Án Quy Hoạch Phân Khu Huỳnh Tấn Phát – Suối Nam Hồ (Khu C1), Phường 11 … Công bố y hoạch sử dụng đất TPt đến năm 2020.
Khám phá nét độc đáo của nhà thờ con gà – Cổng thông tin …
Người dân bản xứ kháo nhau rằng con gà là đài dự báo thời tiết rất hiện đại, con gà quay … Công bố b
Bản đồ Đà Lạt khổ lớn phóng to năm 2021 –
tổng thể Được biết, Thành phố Đà Lạt thuộc tỉnh Lâm Đồng, nằm trên cao nguyên Lâm Viên, thuộc vùng Tây Nguyên, thành phố Đà Lạt …
Bản đồ hiện trạng sử dụng đất TP Đà Lạt – Lâm Đồng
Lấy ý kiến đóng góp của nhân dân về điều chỉnh quy hoạch sử dụng đất đến năm 2020, kế hoạch sử dụng đất kỳ cuối 2016-2020 tỉnh Lâm Đồng(09/10/2016).
Thủ tướng phê duyệt điều chỉnh “Quy hoạch chung TP Đà Lạt và vùng phụ cận đến năm 2030, tầm nhìn đến năm 2050” vào ngày 4-7-2014, UBND tỉnh Lâm Đồng tiếp tục …
Quy hoạch chung Thành phố Đà Lạt và vùng phụ cận đến …
Quy hoạch chung Thành phố Đà Lạt và vùng phụ cận đến năm 2030 và tầm nhìn đến năm 2050.
6 thg 7, 2021 — Quy hoạch thành phố Đà Lạt đến năm 2050 bao gồm Thành phố Đà Lạt và các huyện Lạc Dương, Đơn Dương, Đức Trọng và một phần huyện Lâm Hà (gồm: …
Thông tin chi tiết mới nhất #2021
Quy hoạch Đà Lạt trở thành tin tức vượt bậc thu hút đông đảo sự quan tâm. Tìm hiểu và các phân khu khác.
Bản đồ quy hoạch sử dụng đất phường 5, TP Đà Lạt, tỉnh Lâm …
8 ngày trước — Quy hoạch sử dụng đất phường 5 được thể hiện trên bản đồ quy hoạch sử dụng đất đến năm 2030 thành phố Đà Lạt.
Quy hoạch Đà Lạt năm 2021 tầm nhìn đến năm 2030 – 2050
Đặc biệt, sân bay Liên Khương trở thành sân bay quốc tế đã điểm son cho Đà Lạt trên bản đồ hàng không, tạo điều kiện thu hút du khách du lịch và “chia lửa” …
Tra cứu bảnt và phân khu lân cận mới nhất
4 thg 2, 2021 — Điều này trở thành ưu điểm tuyệt vời mà các dự án bất động sản hướng đến. da lat duoc menh danh la thanh pho mong mo – Tra cứu bản đồ quy 1.Đà …
BẢN ĐỒ QUY HOẠCH ĐÀ LẠT LÂM ĐỒNG
Đà Lạt có một khí hậu mát mẻ và cảnh sắc thiên nhiên tuyệt đẹp. Là thành phố thuộc tỉnh Lâm Đồng, nằm trên cao nguyên Lâm The post
Tra cứu nhanh mới nhất 2021
26 thg 6, 2021 — Thậm chí mở rộng thêm cả huyện Lâm Hà. ban do quy hoach thanh pho da lat moi nhat 2021 hien nay. của thành phố chi tiết.
Tìm kiếm có liên quan
Dự án đường vành đai thành phố Đà Lạt tỉnh Lâm Đồng
Post Views: 708